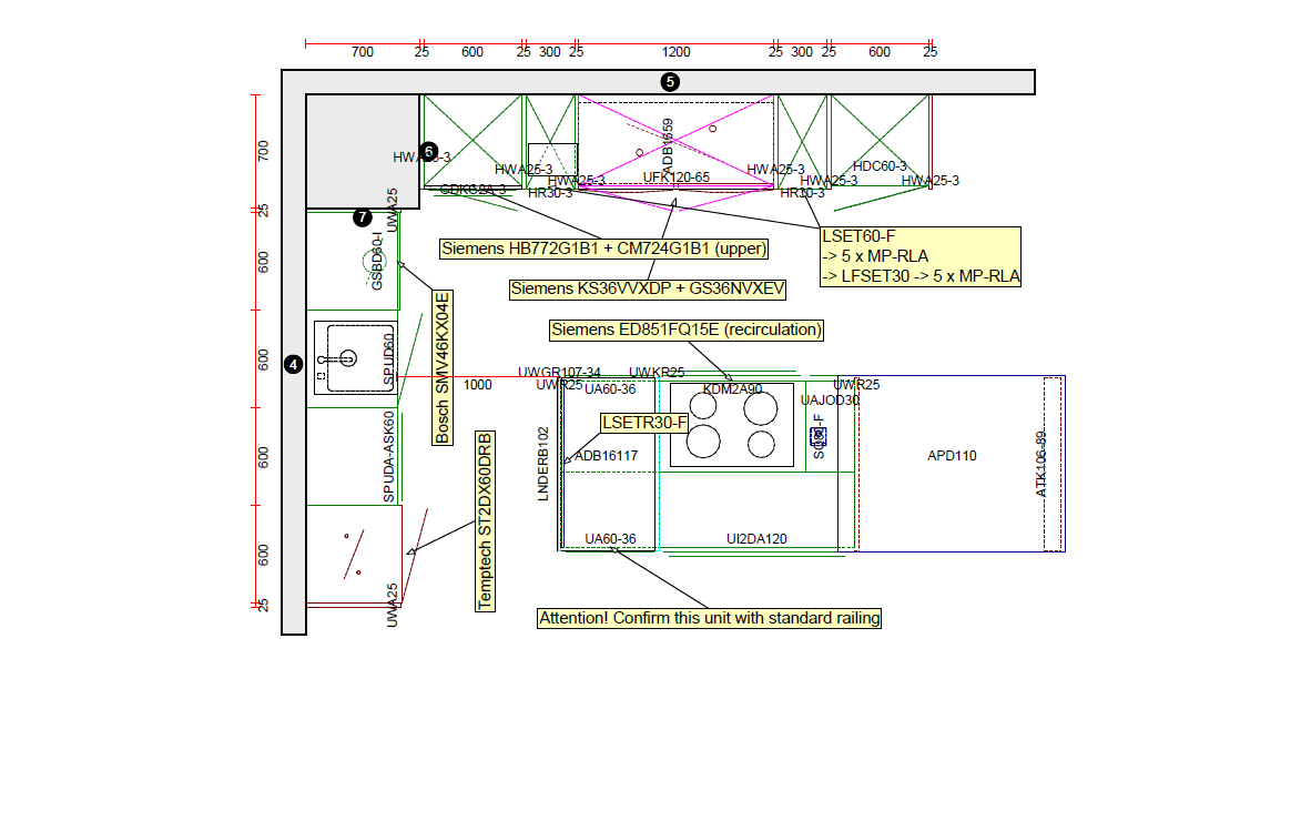
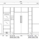
Natur 842
- Bänkskiva laminat och rostfria bänkar från Decosteel med insvetsad diskho. Matchande köksblandare och diskmedelspump ingår.
- Köksö med generösa lådor och integrerad belysning.
- Utdragbart skåp med plats för köksredskap, köksknivar, kryddor och oljor.
- Högskåp med utdragbar skafferi inredning.
- Högskåp för ugn och mikro inklusive odlingslåda med plantlampa och fläkt.
- Öppna hyllor med integrerad belysning.
- Diskbänksskåp med källsortering och utdragbart diskmedelsfack.
- Källsorteringsskåp med sensor.
Vitvaror ingår ej. Köpare ombesörjer demontering och frakt.











